REFERENZPROJEKTE
Hier stellen wir ihnen einige Beispiele unserer interessantesten Projekte vor. Natürlich reicht unser Dienstleistungsspektrum noch viel weiter.
Ein Dank geht an die ausführenden Firmen für die Erlaubnis die Bilder hier zu veröffentlichen, aus rechtlichen Gründen haben wir auf die namentliche Nennung verzichtet.
Hier einige Beispiele unserer Ingenieurtätigkeit.
|
|
Hängegerüst über den Mittellandkanal in Garbsen 2008 |
| |
|
|
|
|
Kesseleinrüstung Steinkohlekraftwerk bei Minden 2012
Details:
• 70 m hoch, 17 m tief, 24 m breit 28560 m3
• ca. 272 to Material (109 Elefanten)
• Gesamtlänge Gerüstmaterial: ca. 32 km
• Fläche der Arbeitsböden: 3632 m2
(4,5 Fußballfelder)
|
| |
|
|
| |
 |
Kirchturmeinrüstung Serkrenrode (Kr. Olpe) 2010 |
| |
|
|
|
Viadukt Selbach (Kr. Korbach) 2010 |
| |
|
|
Kabelbrücke Bayreuth 2014
|
| |
|
|
Strommast Luxemburg November 2014 |
|
Treppenturm Hängegerüst Müllbunker Köln 2015 |
|
Schornsteineinrüstung 2015 |
|
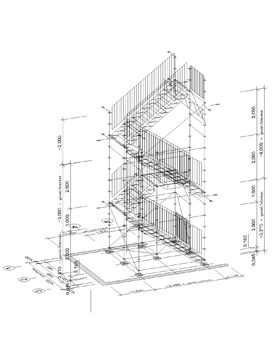
Treppenanlage München 2016 |
| |
Brückengerüst Wiesbaden 2016 |
|
Eine aktuelle Referenzliste erhalten Sie auf schriftliche Anfrage!